車載充電機在產品開發時的試驗驗證階段,未有專門針對凝露問題的試驗,車載充電機內部信號端子的管腳焊點處會產生凝露(如下圖所示)。
由于此處在設計開發階段未考慮到凝露影響,未進行防護處理,實際使用中由于凝露導致相鄰焊腳處發生阻抗變化,造成功能失效。下面,我們使用高低溫冷凝水試驗機,來完成對充電機的凝露試驗測試。
試驗設備:環儀儀器 高低溫冷凝水試驗機
試驗標準:
GB/T 2423.34-2012
ISO 16750-4:2010
試驗內容:
根據相關標準的要求,試驗樣品需要完成溫濕度循環試驗,再進行進行凝露試驗。
1.溫度/濕度組合試驗
溫度/濕度組合試驗是一項加速氣候試驗,通過在高濕的情況下改變溫度條件,在試驗樣品的殼體內外造成溫度變化和溫度差,測試試驗樣品在“呼吸”作用下導致的缺陷。
按照標準GB/T 2423.34-2012的要求進行,試驗由10個子循環構成,每個24 h。其中前9次循環中的5個循環適用于有低溫暴露過程的溫濕度循環,其余的 4 次循環適用于無低溫暴露過程的溫濕度循環。在子循環過程中,當最大循環溫度達到時,試驗樣品應帶電運行,同時要求控制在典型模式下進行功能測試。在試驗中和試驗之后,試驗樣品的全部功能都要滿足設計要求。
2.凝露試驗
凝露試驗按照標準 ISO 16750-4:2010中5.6.2.4的要求進行,試驗要求進一步嚴苛,主要考核試驗樣品在凝露-工作負荷下的適應性。定義溫度和濕度曲線近似車輛環境實際運行產生凝露的效果。
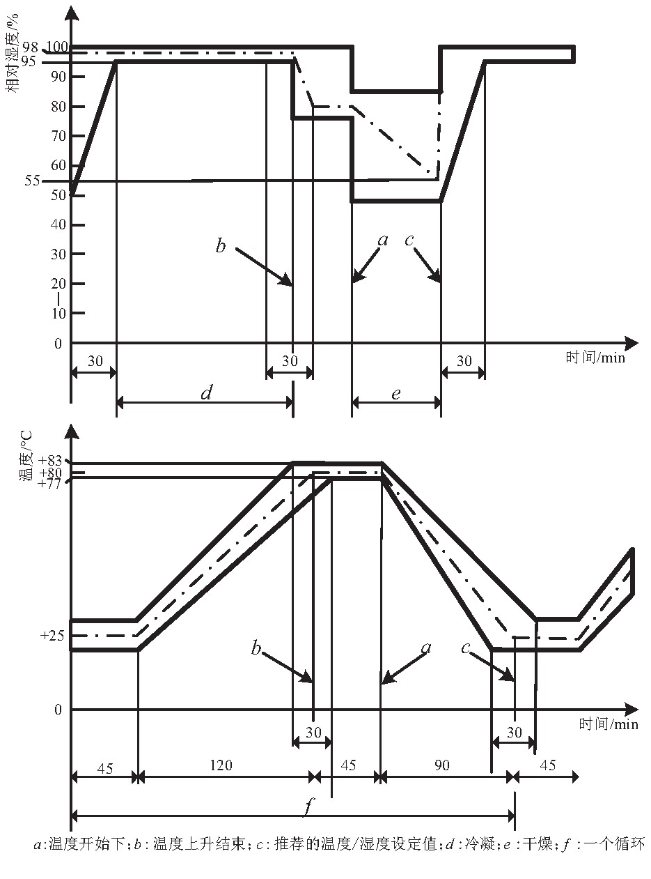
凝露試驗循環如下圖所示,進行 5 個試驗循環。在試驗中,試驗樣品應按ISO 16750-1:2012規定的工作模式2.1工作。試驗結束后,試驗樣品功能狀態應符合ISO 16750-1定義的B級。
凝露試驗的意義:
汽車電子產品內部產生凝露現象時,可能導致電路板受潮、變形斷路、積水漏電等,引起絕緣強度下降、內部信號短路,造成顯性或隱性的電路故障。在產品驗證試驗階段,需綜合考慮產品的工作條件,嚴格進行配合凝露的相關試驗,驗證環境適應性。
如有汽車電子的凝露試驗疑問,可以咨詢環儀儀器相關技術人員。











